¾ÅÓÎÀϸç¾ãÀÖ²¿

¾ÅÓÎÀϸ硤(Öйú)¾ãÀÖ²¿¹Ù·½ÍøÕ¾
¾ÅÓÎÀϸ硤(Öйú)¾ãÀÖ²¿¹Ù·½ÍøÕ¾

´óÁ¬¹ú¼Ê¾Û»áÖÐÐÄÒ»²ã¹ó±öͨµÀÇøÓòË¢ÐÂÏîĿ׷Çó¹©Ó¦ÉÌÕÐļͨ¸æ

2025-05-19 ´óÁ¬¾ÅÓÎÀϸç¾ãÀÖ²¿½ÌÓý¹¤Òµ¼¯ÍÅ 5136
·ÖÏíµ½£º

ÏîÄ¿Ãû³Æ£º ´óÁ¬¹ú¼Ê¾Û»áÖÐÐÄÒ»²ã¹ó±öͨµÀÇøÓòË¢ÐÂÏîĿ׷Çó¹©Ó¦ÉÌÕÐļͨ¸æ

²É¹ºµ¥Î»£º ´óÁ¬¹ú¼Ê¾Û»áÖÐÐÄÖÎÀíÓÐÏÞ¹«Ë¾

ÏîÄ¿ÐèÇó£º

Ò»¡¢ÏîÄ¿Åä¾°

Ϊ½øÒ»²½ÓÅ»¯³¡¹Ý¹¦Ð§½á¹¹£¬ÌáÉý¸ß¶Ë¾Û»á½Ó´ýÓë·þÎñˮƽ£¬´Ë´ÎË¢ÐÂÖ¼ÔÚÍÆ¶¯³¡¹ÝÇéÐÎÏÖ´ú»¯£¬ÌáÉý·þÎñÌåÑ飬ӪÔìÔ½·¢¸ßЧ¡¢Ð­µ÷¡¢¸ßÑŵĽӴý¶¯Ïß¡£Æ¾Ö¤ÓйØÖÎÀí»®¶¨£¬ÏÖÃæÏòÉç»á¹ûÕæÕ÷¼¯ÇкÏÌõ¼þµÄÊ©¹¤¹©Ó¦ÉÌ£¬¼ÓÈëÏîĿʩ¹¤·þÎñµÄ±ÈÑ¡ÊÂÇé¡£

¶þ¡¢ÏîÄ¿¸Å¿ö

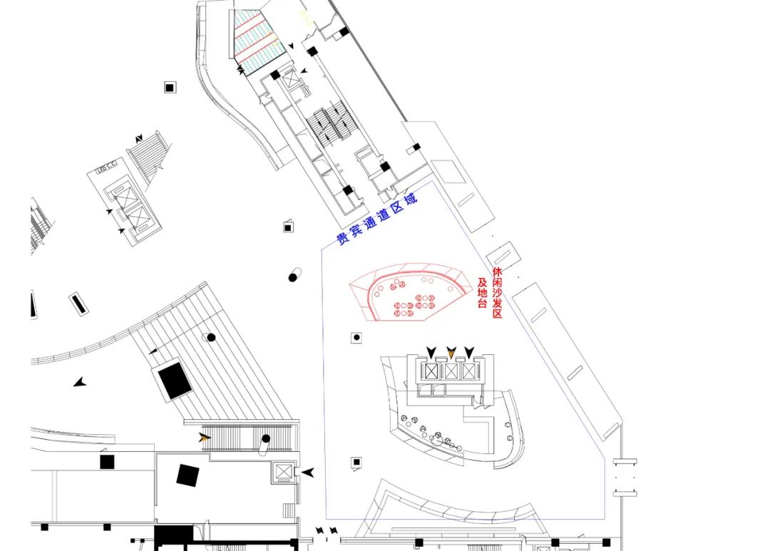
ÏîÄ¿Ãû³Æ£º´óÁ¬¹ú¼Ê¾Û»áÖÐÐÄÒ»²ã¶«²¿¹ó±öͨµÀÇøÓòˢй¤³Ì

Ë¢ÐÂÃæ»ý£ºÔ¼150ƽ·½Ã×

ÏîÄ¿ËùÔÚ£º´óÁ¬¹ú¼Ê¾Û»áÖÐÐÄÒ»²ã¶«²àͨµÀÇøÓò

Èý¡¢Ë¢ÐÂÄÚÈÝ

£¨1£©²ð³ýÔ­ÓÐÐÝÏÐɳ·¢ÇøÓò¼°µØÌ¨½á¹¹¡£

£¨2£©Ê¹ÓÃÓëÔ­Ò»²ãµØÃæÆø¸ÅÒ»ÖµĻ¨¸ÚÑÒʯ²Ä»Ö¸´µØÃæ¡£

£¨3£©Éæ¼°Ê©¹¤¸¨ÖúÖÊÁÏ£¨É³×Ó¡¢Ë®ÄàµÈ£©¡¢È˹¤¡¢ÅÅÔü¡¢ÔËÊäºÍµØÃæ±£»¤¡£

ËÄ¡¢¼Æ»®ÒªÇó

¶«²¿¹ó±öͨµÀÇøÓòˢмƻ®£º

£¨1£©ºÏÀíÌåÀýÏêϸʩ¹¤½ø¶ÈÍýÏë

£¨2£©×°ÐÞ¹¤³Ì£¬Ðè°ü¹ÜÖÊÁ¿ºÍ¹¤ÒÕ¡£ËùÓвð³ý¡¢»Ö¸´¼°µØÃæ×°Ê餳Ì£¬±ØÐèÇкϹú¼Ò¼°ÐÐÒµ±ê×¼£¬È·±£Ê©¹¤ÖÊÁ¿ÓëʹÓÃÊÙÃü¡£»¨¸ÚÑÒµØÃæÆÌÉèÐèÓëÔ­Óг¡¹ÝµØÃæ²ÄÖÊ¡¢É«µ÷¼°ÎÆÀíÒ»Ö¡£

¹©Ó¦ÉÌ×ʸñ£º

ÓµÓÐÓÅÒìµÄÉÌÒµÐÅÓþÓëÎȽ¡µÄ²ÆÎñ״̬¡£¾ß±¸¸»ºñµÄÏà¹ØÂÄÀú£¬ÄÜÌṩ¶¨ÖÆ»¯½â¾ö¼Æ»®ÒÔÖª×ãÌØ¶¨ÐèÇó¡£

Äܹ»Ìṩȫ·½Î»¡¢¸ßÖÊÁ¿µÄÊÛºó·þÎñÓëÊÖÒÕÖ§³Ö£¬È·±£ÏîĿ˳ËìʵÑéÓëºã¾ÃÎȹÌÔËÐС£

Ìá½»×ÊÁÏÇåµ¥£º

¹«Ë¾ÓªÒµÖ´ÕÕ¸±±¾¸´Ó¡¼þ¡£ÒÔÍùÏà¹ØÏîÄ¿°¸ÀýÏÈÈݼ°¿Í»§ÆÀ¼Û¡£¹ØÓÚÊ©¹¤ÖÊÁϵÄÏà¹Ø×ÊÖÊ֤ʵ¼°ËµÃ÷Êé¡£ÇåÎúµÄ±¨¼Ûµ¥¼°ÉÌÎñÏàÖúÌõ¿î¡£

Ìá½»·½·¨:ÒÔPDFÃûÌý«ËùÓÐ×ÊÁÏɨÃè³ÉÒ»¸öÎļþ²¢·¢ËÍÓÊÏä¡£

ÓÊÏ䵨µã: 13942068800@163.com

Îå¡¢ÁªÏµ·½·¨

ÁªÏµÈË£º´ú˾Àí

µç»°£º0411-39866868

ÊÖ»ú£º13840350292

±¸×¢£º±¾ÏîÄ¿±ü³Ö¹«Õý¡¢¹«Õý¡¢¹ûÕæµÄÔ­Ôò£¬½Ó´ýËùÓÐÇкÏÌõ¼þµÄ¹©Ó¦ÉÌÆð¾¢¼ÓÈë¡£ÎÒÃǽ«ÒÀ¾ÝÊÖÒռƻ®µÄÏȽøÐÔ¡¢¼ÛÇ®µÄºÏÀíÐÔÒÔ¼°·þÎñÄÜÁ¦µÄÖÜÈ«ÐÔ¾ÙÐÐ×ÛºÏÆÀ¹À£¬ÆÚ´ýÓëÄúЯÊÖ¹²´´ÓÅÃÀδÀ´£¡

¾ÅÓÎÀϸ硤(Öйú)¾ãÀÖ²¿¹Ù·½ÍøÕ¾

ÍøÕ¾µØÍ¼